- Informații utile
- Lista bunurilor ce conduc la excluderea acordării VMG ASF ȘI AIL
- Formular de cerere declarație pe propria răspundere
- Dacă vrei să completezi formularul pe calculatorul tău, folosește acest pdf inteligent Cerere-Declarație pe proprie răspundere pentru acordarea unor drepturi de asistență socială conform Legii 226/2021.DESCARCĂ CERERE –DECLARAȚIE PDF inteligent.
- Vezi aici tutorialul de completare PDF inteligent.
Uncategorized
Proiecte în implemetare
Amenajare infrastructură drumuri agricole în comuna Socodor, jud. Arad
Modernizare străzi în comuna Socodor, județul Arad
Construire grădiniță cu program normal, comuna Socodor, județul Arad
Renovare și dotare Cămin Cultural din comuna Socodor, jud. Arad
Reabilitare și extindere sistem de alimentare cu apă și extindere canalizare menajeră în comuna Socodor, județul Arad
Amenajare zonă de agrement și navomodelism, în comuna Socodor, jud. Arad
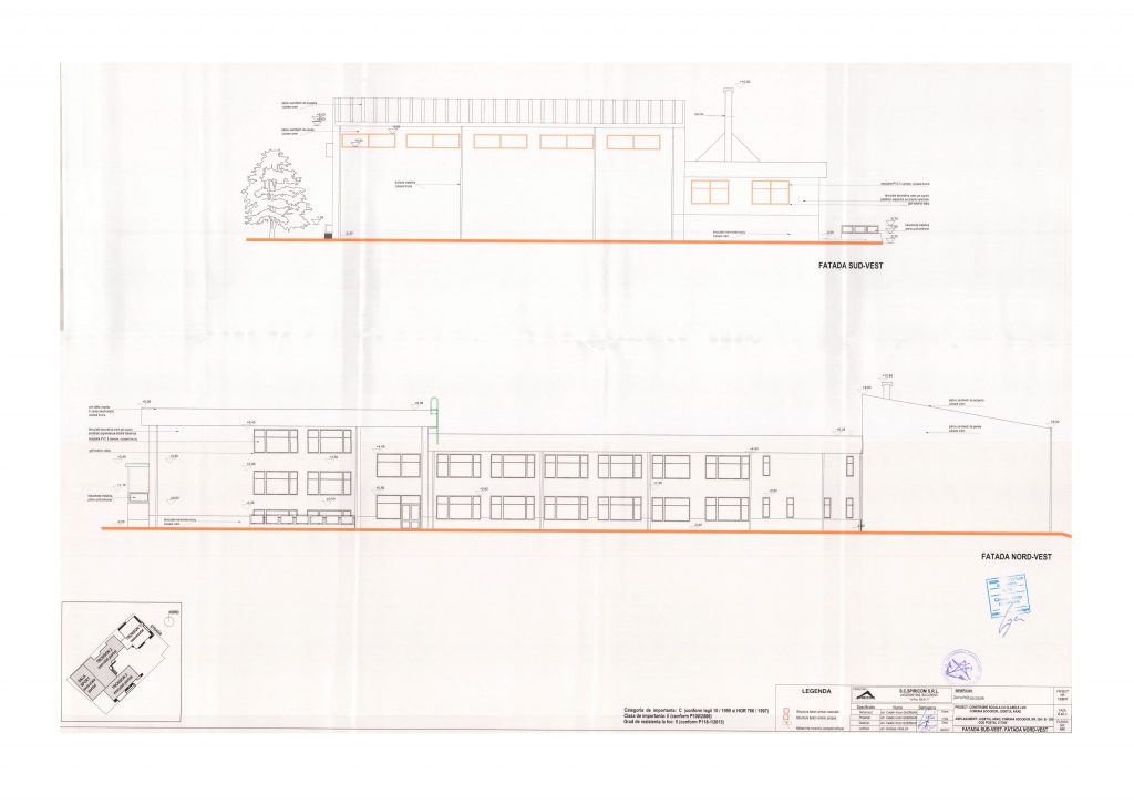
Construire școală cu clasele I-VIII Comuna Socodor, județul Arad

Prin implementarea acestui proiect, se va continua lucrările pentru construirea școlii cu clasele I-VIII, care este prevăzută a fi formată din:
- Tronsonul 1 are regim de înălțime D+P+1E: La demisol vor fi amplasate laboratoarele, la parter sălile de clasă și cancelaria, iar la etaj săli de clasă și laboratorul de informatică;
- Tronsonul 2 are regim de înălțime P+1E: La parter vor fi amplasate săli de clasă și vestiarele laboratorului de sport. La etaj, sunt propuse săli de clase și bibliotecă;
- Tronsonul 3 are regim de înălțime D+P: La demisol vor fi amplasate spațiile tehnice destinate centralei termice și anexele bucătăriei. La parter vor fi amplasate bucătăria și sala de mese;
- Laboratorul de sport are regim de înălțime P și este destinat pentru desfășurarea orelor de educație fizică (sport);
- Corpul centralei termice are regim de înălțime P și este destinat producerii și distribuției energiei termice.












